
SUMMARY
Set on the protected shores of Flathead Lake in Bigfork, Montana, this dream home is being designed for a young family seeking a timeless lakeside retreat. With over 300 feet of shoreline, the project is a rare blend of modern luxury and environmental stewardship, unfolding on a site rich in natural beauty and ecological significance.
VISION
The clients imagined a home where family memories could unfold against the backdrop of Montana’s largest freshwater lake. They wanted a clean, expansive design that preserved the land’s natural features while maximizing lakefront views and indoor-outdoor living. Key to their vision was the seamless integration of architecture with nature.
SCOPE
This custom ground-up build is currently in progress, with completion slated for 2026.
Location
Bigfork, Montana
Year
2026 (in progress)
Square Footage
10,000 sq. ft.
Builder
AllHaus
Photographer
Skyvault Media
CONSULTATION
Due to the site’s classification as protected marshland and its proximity to the lake, extensive consultation with regulatory bodies was required before breaking ground. The property lies within a designated floodplain, necessitating a special permit approved by local authorities. Additionally, the U.S. Army Corps of Engineers conducted a thorough review and approval process to ensure compliance with Section 404 of the Clean Water Act, protecting wetlands and aquatic habitats.

DESIGN DEVELOPMENT
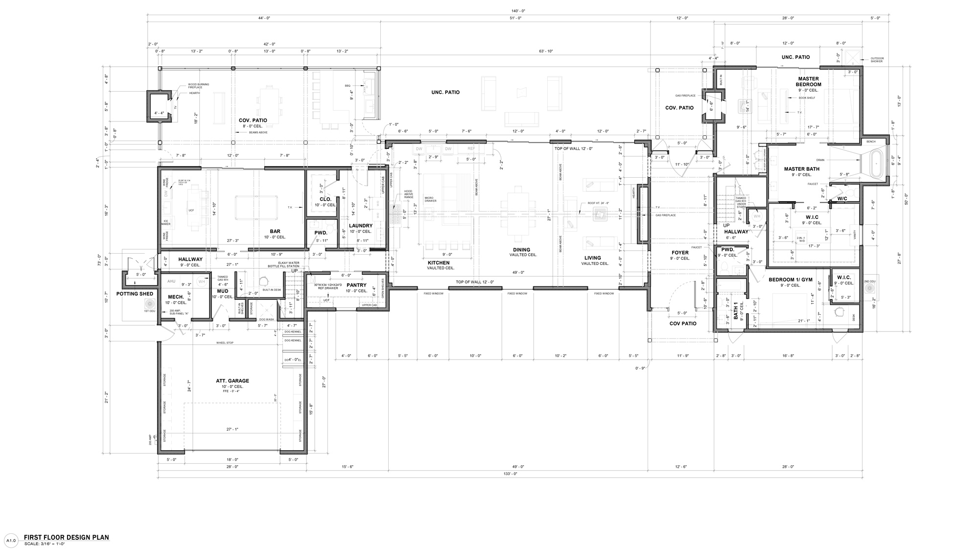
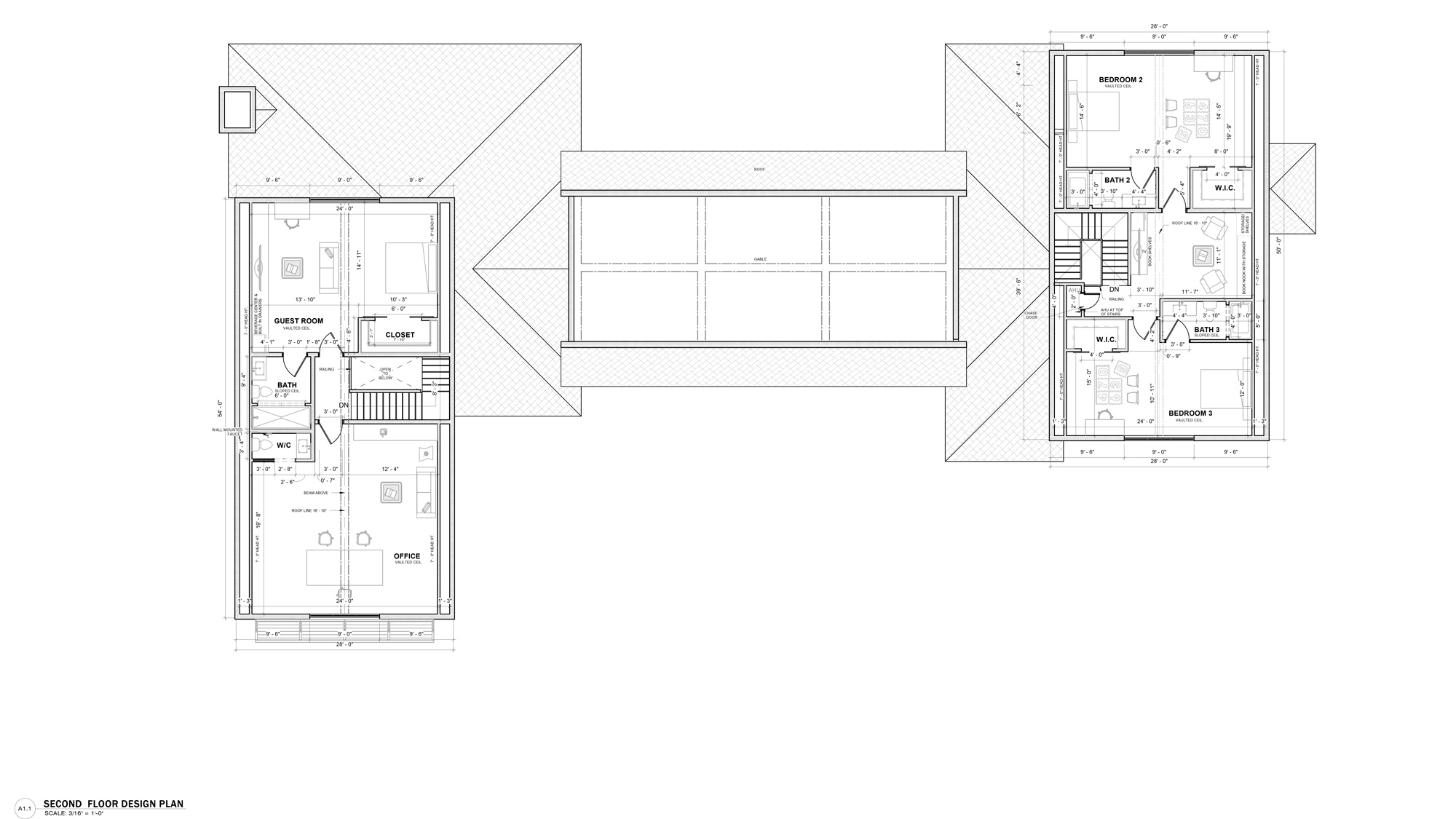
The future home will feature a generous kitchen and family living space with uninterrupted views of Flathead Lake. Both the main house and a separate guest house are strategically placed just 50 feet from the shoreline, a proximity made possible only through years of permitting and regulatory coordination. A dock and boathouse will extend the connection to the lake.
The design, while still evolving, emphasizes large glass openings, open-concept interiors, and natural material palettes that echo the surrounding landscape.

CONSTRUCTION
The first phase of construction involved cutting a carefully designed access road through the lot. This corridor was engineered to minimize disruption to the protected wetland environment and maintain natural water flow patterns.
Foundation work is now underway and represents one of the most technically complex components of the build. Because of the site’s soft soils and risk of soil liquefaction near the lakefront, over 200 helical piers—each extending 40 feet deep—are being installed to stabilize the foundation of both structures. This foundational system will ensure long-term structural integrity while respecting the sensitive conditions of the floodplain.

Experience the AllHaus difference.
At AllHaus, New Home Construction isn’t just a service—it’s an art form.
We want your experience working with us to be as transformative as your updated home,
and pride ourselves on our dedication
to craftsmanship and innovation. Start re-imagining your dream with us today.